Home
News
Your area
Sport
What’s on
Jobs
Public Notices
Send your story
Offers
Subscription
More
Planning
Public Notices: Venue applies for licence to sell alcohol
New petrol station redesign boosts customer facilities
Co-op store likely to be approved despite overwhelming opposition
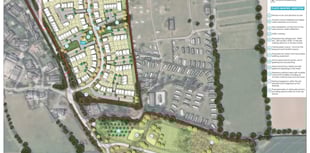
New bid for housing on controversial riverside site
Public Notices: Roadworks in Cornwall confirmed for January
Public Notices: Council warn of parking tickets in roadworks area
More than 120 'affordable' homes approved by Cornwall Council
Public Notices: Level crossing to be closed for inspection
Cornwall Council to decide on own proposal for extra care housing
The development behind Old County Hall will feature a wide range of housing
Public Notices: Cornwall Council announce further open space disposals
New Year start for harbour and quay plans
In My View: Planning rule changes threaten local green spaces
Public Notices: New speed limits among latest public notices
Public Notices: Cafe near train station applies for alcohol licence
Public Notices: Arts Theatre and restaurant apply to Cornwall Council
Contentious bid to save gig club leads to neighbour impact row
Fears new Co-op store will kill trade at local shops
Public Notices: Alcohol and vehicle licensing applications submitted
The new logistics warehouse could create 180 jobs and add £10 million annually to the Cornish economy
Plan to modernise ‘eyesore’ hotel could still happen despite refusal
Public Notices: Venue applies for additional alcohol licence hours
Public Notices: Applications for vehicle and alcohol licences
Here's how the government's licensing 'reforms' will affect you
Pydar demolition begins after long delays
Licence applications among submissions to council
Owned or licensed to Tindle Newspapers Ltd. | Independent Family-Owned Newspapers | Copyright & Trade Mark Notice & 2013 - 2026