Persimmon Homes Cornwall has overcome the final phase of the planning process, known as a reserved matters application for the construction of the homes, of which 132 will be classified as ‘affordable’ on land at Priory Road, adjacent to a development which incorporates the town’s Aldi supermarket and Bodmin Police station.
The affordable element represents 25 per cent of the total development, with the Bodmin target of 30 per cent not achieved as the developer submitted documents stating that the increased target would not be viable.
The 132 affordable properties are to be split, with approximately 66 being for affordable rent and 66 for shared ownership or ‘intermediate sale’.
In welcoming the approval - which was made using delegated authority by Cornwall Council’s planning officers after it was not called in to be decided by a planning committee – the developer promised multiple benefits from the scheme for the Bodmin community.
It added that it will also generate ongoing income for public services, including £950,000 for Cornwall Council, £137,000 for Devon and Cornwall Police, and £82,000 for Bodmin Town Council every year.
The developer stated that construction of the new community will create local jobs and training opportunities, while boosting Bodmin’s economy through new resident spending and business growth. In addition, it promises it will deliver new green spaces, community facilities and major ecological improvements. It will provide an 86.5 per cent biodiversity net gain, supported by enhanced hedgerows, nature habitats and targeted measures including bird, bat and dormouse boxes to protect local wildlife.
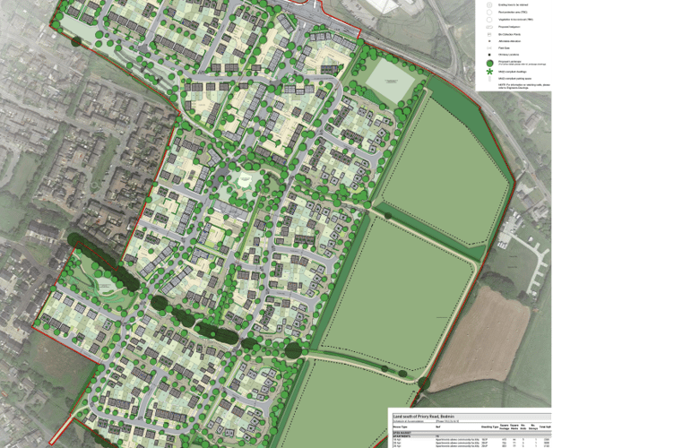
Residents will also benefit from new parks, allotments, play areas, a community orchard and a community centre, alongside more than two hectares of landscaped open space that will encourage outdoor activity and support wellbeing.
The proposals include £3.5-million worth of contributions from the developer, including the construction of a community centre, open space provision to incorporate play areas, community allotments/orchards and cycle and pedestrian linkages in addition to a sustainable drainage system and biodiversity improvements.
However, the developer had to overcome significant concerns related to flooding, with the site the land sits in forming part of the town’s critical drainage area – with warnings that if the drainage system put into place was insufficient, it could lead to significant flooding of the town.
Documents explaining the reasons for approval note the following with relation to flooding, namely: “The Environment Agency (EA) and Cornwall Council Local Lead Flood Authority (CCLLFA) raised significant concerns at the outset of this reserved matters application. The outline planning application (PA12/12115) included information and work relating to this proposed development site not increasing flood risk to Bodmin by the inclusion and landscaping of surface water storage basins at the bottom of the valley together with robust features to intercept overland flows.
“This development site is in a very sensitive location from a flood risk perspective as it occupies the valley head of the designated Critical Drainage Area. The Bodmin Town Leat watercourse (designated as main river) which this site drains into is highly sensitive to rainfall.
“The leat flows below ground through the centre of the town and this culvert, which has a limited capacity and high flows must be carefully managed to ensure that no flooding occurs. If the capacity of the culvert is exceeded, a high number of properties are at risk of flooding. Therefore, only development that demonstrates flood risk will not be increased to these existing properties is appropriate development on this site.
“A considerable amount of work has been undertaken between the developer’s consultant and dialogue with the EA and CCLLFA to ensure that the proposed drainage features in or close to the valley bottom have the ability to slow and store this flow, as agreed in the outline planning application.
“Following numerous revisions and scrutiny, the EA and CCLLFA have removed their objections to the proposal. Furthermore, they are content that sufficient information has been submitted during the course of the application to discharge the relevant planning conditions on the outline permission which includes construction phase arrangements to protect water-quality and minimise flood risk, as well as ongoing post-completion management and maintenance arrangements.
“Accordingly, it is considered that the proposal is in compliance with the relevant development plan policies that seek to minimise flood risk and protect water quality including CLP policy 26, and CEDPD Policies CC3 (Reduction of Flood Risk) and CC4 (Sustainable Drainage System Design).
“In respect to potable water and mains foul drainage, South West Water has confirmed that upgrades will take place to accommodate forecast growth within the town. No objection was raised to the proposal which is considered acceptable in respect to this issue.”
Cornwall Council’s planners approved the reserved matters application subject to a number of conditions relating to phosphate mitigation measures.
There were also conditions stipulating that a maximum of 75 per cent of the development can be occupied before the promised community facilities are completed and operational in addition to the construction of pedestrian and vehicle linkages to adjoining estates in accordance with the approved plans and to an adoptable standard and other conditions related to the design of the properties.
Welcoming the approval, the managing director of Persimmon Homes Cornwall, Andy Hill, said: “We’re delighted to secure planning approval from Cornwall Council for this exciting new site in Bodmin, which will deliver over 500 much-needed homes for local people.
“Our plans will provide high-quality, energy-efficient homes, alongside major investment in local services and green spaces for local families to enjoy.
“With 25 per cent of the homes being transferred to a local housing association, we’re proud to be supporting jobs, skills and sustainability while helping more local people find a home to call their own.”



.png?width=209&height=140&crop=209:145,smart&quality=75)

Comments
This article has no comments yet. Be the first to leave a comment.